お知らせ・イベント・コラム

■終了しました【2/11-12】『北欧スタイルのモデルハウス』オープンイベント開催@豊田市
北欧スタイルのモデルハウスが完成!
オープンイベントを2月11・12日に開催します。
《オープンイベントの内容》
●北欧スタイルのモデルハウスだけでなく、KAMPACHI Houseも同時にご覧いただけます(車で約8分)
●ご来場の方にホロスホームオリジナルマグカップをプレゼント!(一家族様に2個プレゼント)

【北欧スタイルのモデルハウス 詳細】
・時間:10:00-17:30
・住所:豊田市東広瀬町大根11−19
・電話番号:TEL.0120-411-185(本社)
※完全予約制とさせていただきます
ご予約は下記フォームもしくは
TEL.0120-411-185へお電話下さい。
【北欧スタイルのモデルハウス 写真・みどころ】
インテリア

リビングに面した中庭を設けています。
窓からは、庭に植えた植栽(ヤマボウシ)を眺めることが出来ます。

床材は、無垢のパイン材を使っています。壁には珪藻土を塗っています。
ダイニングテーブルも床と同じパイン材を使い、ホロスホーム自社工房で作成しました。

リビングには、薪ストーブを設けています。
この小さな薪ストーブでも部屋中暖かくなります。
吹抜けがあるのでとても開放的です。

玄関の正面には、ピクチャーウィンドウ。
窓越しに見えるところには、シャラの木を植えています。

玄関の横には、シューズクローゼットを設けています。

リビング・ダイニングに面した中庭。

ダイニングテーブルの横にもピクチャーウィンドウ。

吹抜け

トイレの手洗い
外観
2023年1月27日撮影(この日は愛知県豊田市でも積雪するほどの寒波が来ていました)

庭には様々な植栽を植えました

門柱として、ガビオンを設けました。

砂利は地元で採れる猿投石

薪を保管する、薪小屋と雪に埋もれたハーブガーデン

庭を建物で囲うことで、プライベートスペースとしての中庭を設けることが出来ます。
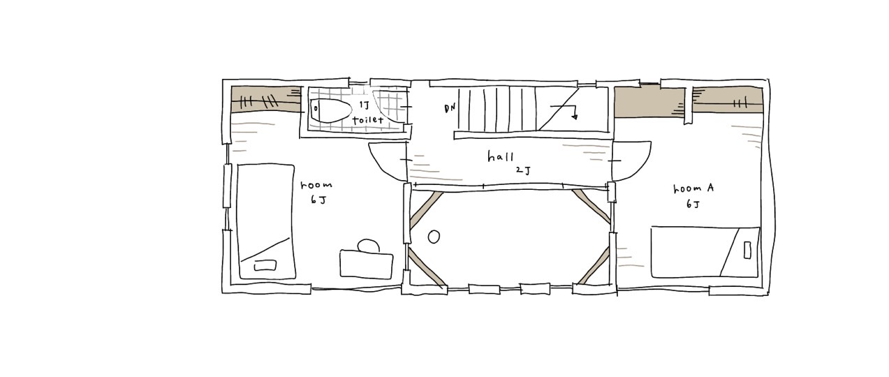
【北欧スタイルのモデルハウス 間取り】
1階平面図

2階平面図

ホロスホームってどんな工務店?
ホロスホームは地元安城市に根付き、新築を5000棟以上建ててきた工務店
『ハウス成田建設株式会社』の注文住宅ブランドです。
ーホロスホームの標準性能ー
耐震等級3相当
断熱等級5
C値平均=0.41c㎡/㎡(高気密仕様の場合)
ーホロスホームの見学会に参加する、3つのメリット ー
⒈ 等身大の家づくりを体感出来る
一般的な住宅展示場のモデルハウスとは違い、
実際にお客様が住むことになるお家です。
考え抜かれた動線、上手な光・風の取り込み方をご確認いただけます。
また、自然素材のもつ素材感をご体験ください。
⒉ 資金・土地の相談が出来る
ホロスホームでは、建物だけでなく
土地探しや資金のご相談もお受けいたします。
上手な土地の探し方や、
無理のない住宅ローンの組み方などをご提案いたします。
⒊ 最新の住宅ローン情報を手に入れられる
私たちは日々、
住宅ローンの情報にアンテナを張っています。
現在のお得な住宅ローン情報をご提案します。
ご予約は、下部の予約フォーム
または、
TEL.0120-411-185へお電話下さい。
スタッフ一同、ご予約を心よりお待ちしております!
▽LINE@登録はこちらから!▽
イベントの最新情報などお役立ち情報をお届けしています。
Works
お問い合わせ・
モデルハウス見学の
ご予約はこちら
お電話でのご相談・ご予約
TEL 0120-411-185
営業時間 10:00-18:00 (水曜・木曜定休)
Webフォーム









